Small house plan, elevation and section detail dwg file
Description
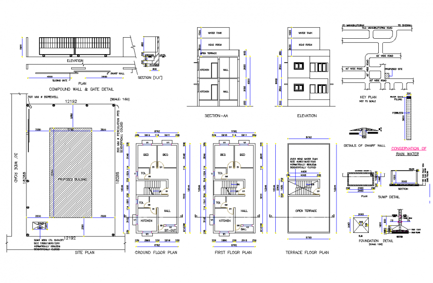
Small house plan, elevation and section detail dwg file, ground floor to terrace floor plan detail, dimension detail, naming detail, hatching detail, site plan detail, compound wall an gate detail, front elevation detail, section A-A’ detail, furniture detail in door, window, table and chair detail, not to scale detail, cut out detail, etc.
Uploaded by:
Eiz
Luna

